1 min read

LEWISTON — In 10 days, the Planning Board will take up the $3.2 million project to tear down the old Cottle’s at the corner of Sabattus Street and East Avenue and add a gas station, convenience store, fast food restaurant and car wash.

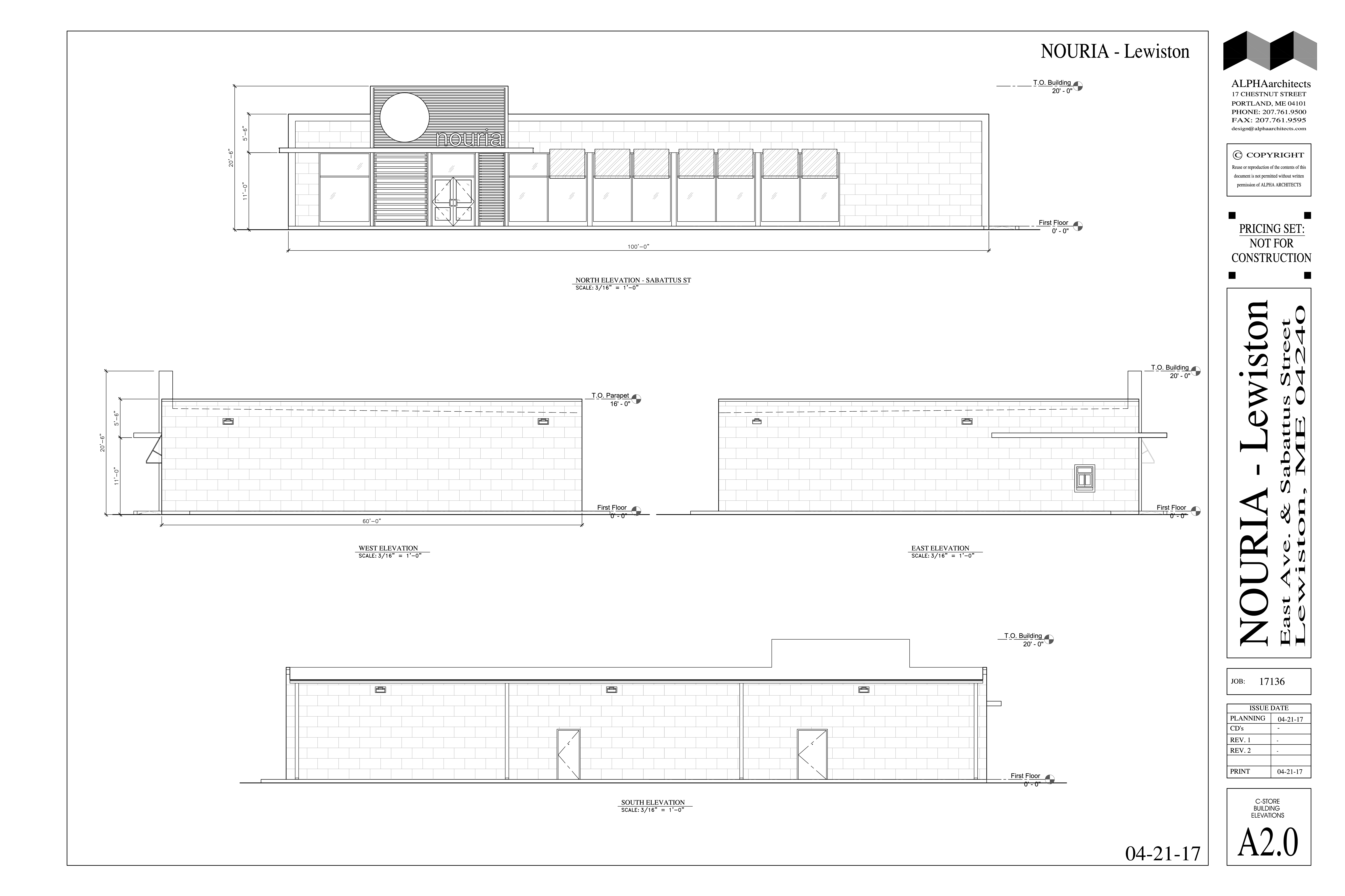
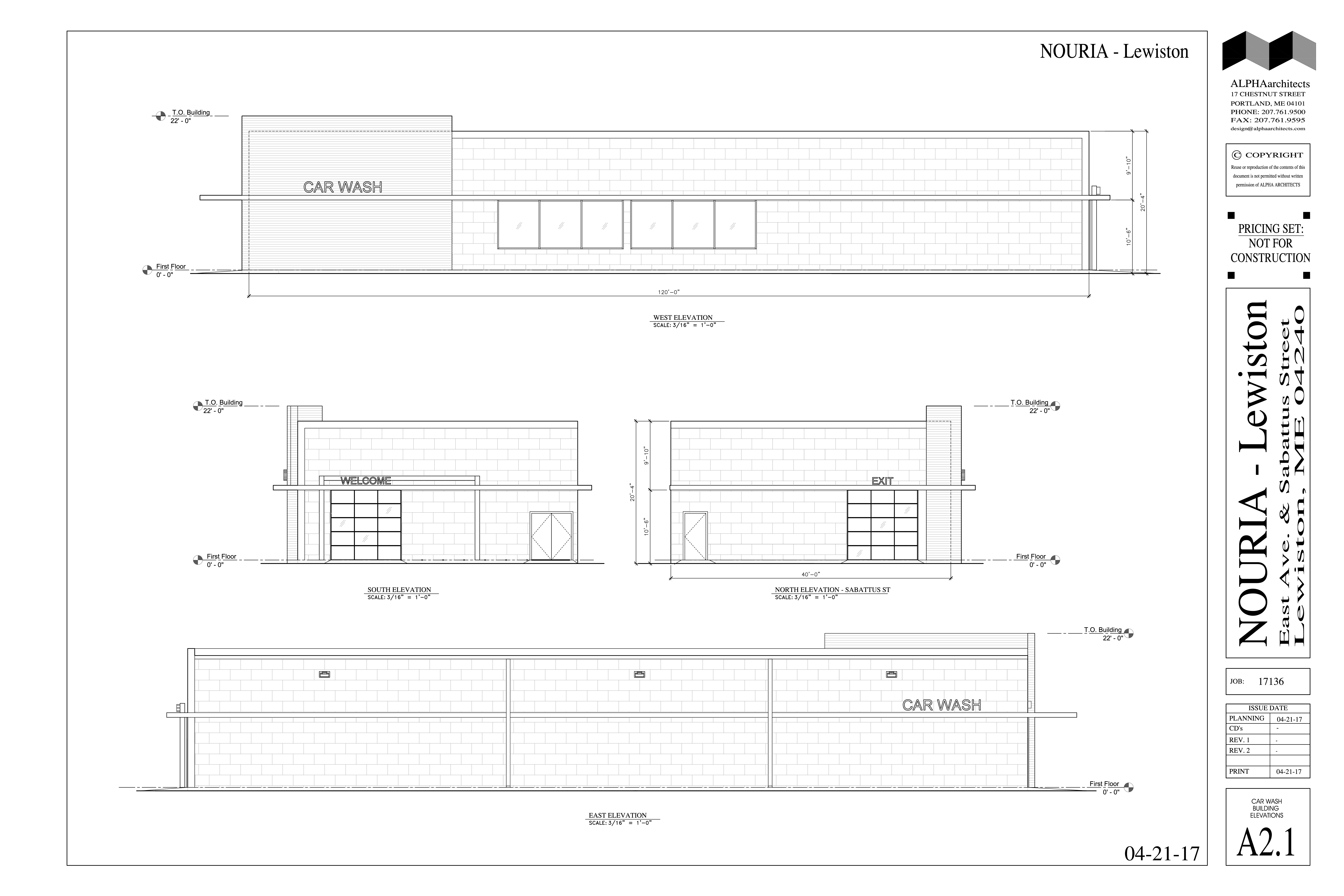
Initial plans submitted to the city call for two long, single-story buildings.

City Planner David Hediger said the city doesn’t know who the fast food tenant is yet. Plans do include a drive-thru.

Guggenheim Real Estate Partners out of Texas, which has constructed several similar developments, first expressed interest in the long-vacant property last year.

The public hearing is set for 5:30 p.m. May 22 at city hall.

If approved, construction is expected to start this year, though Hediger said he didn’t know if it would be finished in 2017.

Advertisement

[email protected]

The lot at the corner of East Avenue and Sabattus Street in Lewiston that has been dormant for many years may be developed in the near future.

An elevation view the convenience store and fast food restaurant proposed for 449 Sabattus St. in Lewiston, part of a $3.2 million project at the corner of East and Sabattus street that’s going in front of the planning board May 22.

An elevation view the car wash proposed for 449 Sabattus St. in Lewiston, part of a $3.2 million project at the corner of East and Sabattus street that’s going in front of the planning board May 22.

Comments are no longer available on this story